LinkedIn icon Homes.com icon VCard icon 
CREATE ACCOUNT LOG IN
Alba Lange
REALTOR®
(941) 704-3026
$314,850

36 Divot Place Bunnell, FL 32110 Residential - Single Family Active

  • 36 Divot Place, Bunnell, FL 32110 Main Photo

57 Total Photos [Click to View All]

Description

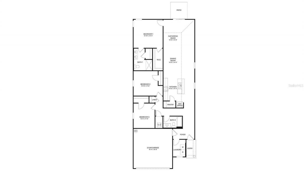
Under Construction. The Berkeley+ floor plan features 1,647 square feet of thoughtfully designed living space, perfectly suited for first time homebuyers or those looking to downsize while maintaining comfort and style. This home features three spacious bedrooms and two full bathrooms, offering ample room for families, guests, or a home office. The open-concept design creates a bright and inviting atmosphere, with plenty of windows and a vaulted ceiling in the main living areas, seamlessly connecting the kitchen, dining, and living areas great for easy entertaining and everyday living.The kitchen provides generous counter space, plenty of storage, and a practical layout. Retreat to the main bedroom suite with its private bathroom, designed as a peaceful sanctuary to unwind after a busy day. Additional highlights include a two-car garage for convenience and flexible living spaces that adapt to your unique needs. As a popular Express Series plan, the Berkeley+ strikes the perfect balance between functionality and charm. Whether you are simplifying your lifestyle or searching for a well-designed new home, the Berkeley+ floor plan offers a smart, stylish option tailored to support your new home needs. Every home also includes the Home is Connected smart home system, giving you easy control of your home's security, temperature, and more right from your fingertips. Love this layout? Let's find the perfect Berkeley ll homesite for you. Call our Online Sales Concierge to get started today!

Property Highlights

Property Type: Residential - Single Family
Cooling: Central Air
Garage: 2 car attached
Heating: Central, Natural Gas
Home Style: Traditional
Lot Size: 0.16 Acres
Roof Type: Shingle
Stories: 1.0
Taxes: $0
Year Built: 2026

General Information

Bedrooms: 3
Bathrooms: 2 Full
Sqft: 1,646
County: Flagler
High School: Flagler-Palm Coast High
Subdivision: GRAND RESERVE AND GOLF CLUB
Listed By:
Charlie Rogers DR HORTON REALTY INC. 904-853-9190

Amenities

High Ceilings
Open Floorplan
Other
Smart Home
Thermostat
Vaulted Ceiling(s)
Walk-In Closet(s)
Other

Property Features

Appliances: Dishwasher, Disposal, Microwave, Range
Association Amenities: Golf Course, Other, Pool
Builder: DR HORTON
Directions: From I-95 take exit 284 for SR-100 (Moody Blvd) and travel west toward Bunnell approximately 3.1 miles to community on the right at Grand Reserve Pkwy, then left on Grand Reserve Blvd. Models will be just ahead on the right.
Energy Efficient: Appliances, Construction
Exterior: Frame
Flood Zone Code: x
Flooring: Carpet, Other, Vinyl
Foundation: Slab
HOA Fee: 56/ Annually
HOA Y/N: Yes
Home Warranty Y/N: Yes
Listing Terms: Cash, Conventional, FHA, VA Loan
Lot Dimensions: 0.16
Model: Berkeley+
Ownership: Fee Simple
Patio/Porch: Rear Porch
Pets Allowed: Yes
Pool: Other
Property Attached Y/N: No
Property Sub-Type: Single Family Residence
Sewer: Public Sewer
Showing Instructions: See Remarks
Special Sale Provisions: None
Utilities: Natural Gas Connected, Sewer Connected, Underground Utilities, Water Connected
Water: Public
Water Access Y/N: No
Windows: Double Pane Windows
Zoning: R-1
$314,850
3beds
2.0baths
1,646sqft
2cars
New to the Market Active
BEDS3 BATHS2 full SQUARE FEET1,646 MLS#FC318155
STATUSActive PROPERTY TYPEResidential - Single Family SUBDIVISIONGRAND RESERVE AND GOLF CLUB

Get in Touch

Contact an agent to learn more about

36 Divot Place, Bunnell, FL 32110.

Contact Form

Preferred Communication Method:

Estimate Your Payment

Estimated Payment

$ 1,153.77 per month $1,061.94 Principal & Interest $0.00 Property Tax (data not provided by mls) $91.83 Homeowner's Insurance

Change Payment Information

%
years/fixed
yearly
yearly (est.)
(Payments are an estimate and may vary by lender)
Disclaimer: All information deemed reliable but not guaranteed. All properties are subject to prior sale, change or withdrawal. Neither listing broker(s) or information provider(s) shall be responsible for any typographical errors, misinformation, misprints and shall be held totally harmless. Listing(s) information is provided for consumers personal, non-commercial use and may not be used for any purpose other than to identify prospective properties consumers may be interested in purchasing. Information on this site was last updated 04/29/2026. The listing information on this page last changed on 04/29/2026. The data relating to real estate for sale on this website comes in part from the Internet Data Exchange program of Delta Media Group MLS (last updated Wed 04/29/2026 3:18:19 AM EST) or Stellar MLS (last updated Wed 04/29/2026 1:58:56 AM EST). Real estate listings held by brokerage firms other than Wagner Realty may be marked with the Internet Data Exchange logo and detailed information about those properties will include the name of the listing broker(s) when required by the MLS. All rights reserved.

Listing data and photos distributed by MLSGRID
Member Participants (and their affiliated licensees, if applicable) shall indicate on their websites that IDX information is provided exclusively for consumers’ personal non-commercial use, that it may not be used for any purpose other than to identify prospective properties consumers may be interested in purchasing, that the data is deemed reliable but is not guaranteed by MLS GRID, and that the use of the MLS GRID Data may be subject to an end user license agreement prescribed by the Member Participant’s applicable MLS if any and as amended from time to time. MLS GRID may, at its discretion, require use of other disclaimers as necessary to protect Member Participant, and/or their MLS from liability.
Based on information submitted to the MLS GRID. All data is obtained from various sources and may not have been verified by broker or MLS GRID. Supplied Open House Information is subject to change without notice. All information should be independently reviewed and verified for accuracy. Properties may or may not be listed by the office/agent presenting the information.



Privacy Policy / DMCA Notice / ADA Accessibility

Login to My Homefinder

Pixel